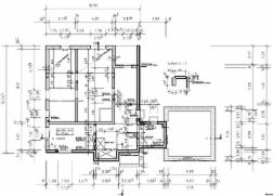
2011 | SolarZentrum Kraichgau | Baueingabeplanung, statische und baupysikalische Beratung|
genauere Projektbeschreibung finden Sie hier

a
2010 | Sanierung eines Fachwerkhauses in Bretten-Ruit | Angleichung des unsanierten Gebäudeteils an den Bestand | Entwurf und Eingabeplanung, Energieberatung, Statik, Bauphysik, Ausführungsplanung und Bauleitung
vorher | nachher



a
2009 | Freie Mitarbeit bei Ingenieurbüro Rolf Malthaner, Rülzheim | Erstellung von Schal- und Bewehrungsplänen für ein Einfamilienwohnhaus in Spöck

a
2008 | Freie Mitarbeit bei Berger und Fichtner, Untergrombach | Umbau und Sanierung der Zehntscheuer in Friolzheim in ein Gemeindezentrum im denkmalgeschütztem Gebäude | Statische Nachweise, Reparaturdetailentwicklung und Konstruktionspläne
vorher
nachher

a
2008 | Sanierung und Umbau einer Lagerhalle in beheizte Werkstatträume in Stutensee-Friedrichstal Baueingabe, Werkplanung und Bauleitung, baupysikalische Beratung

a
2008 | Freie Mitarbeit bei Berger und Fichtner, Obergrombach | Statik und Konstruktion für den Neubau einer Stadtvilla in Karlsruhe-Grünwinkel
a
2007 | Freie Mitarbeit bei Ingenieurbüro Rolf Malthaner, Rülzheim | Statik, Planung und Konstruktion Erweiterung eines Einfamilienwohnhauses in Pfinztal-Söllingen über zwei Geschosse in Holzständerbauweise.

a
2006 | Freie Mitarbeit bei Ingenieurbüro Rolf Malthaner, Rülzheim | Erstellung von Schal- und Bewehrungsplänen für ein Einfamilienwohnhaus in Eppingen

a
2006 | Eingabeplanung, Nutzungsänderung und statische Nachweise für den Umbau eine Kirche in ein Vereinsheim in Altensteig | Hier wurde eine neue Zwischendecke eingebracht.

a
2003 | Freie Mitarbeit bei Verroplan, Bretten | Planung und Konstruktion der Glasüberdachungen des Busbahnhofs und den Bahnhofsvordächern in Kaiserslautern

a
2003 | Freie Mitarbeit bei Verroplan, Bretten | Planung und Konstruktion der Glasfassaden für den Neubau Einrichtungshaus Mann Mobilia in Eschborn

a
2000 | Eingabeplanung, Statik, Konstruktion und Bauleitung für den Um- und Anbau eines Zweifamilienwohnhauses in Bretten
a
a
a
Viele weitere statische Nachweise, Konstruktionspläne, Eingabeplanungen, Abgeschlossenheitserklärungen und Nutzungsänderungen
a
a
a